Jun 17, 2021
Tyler Gilley
This past week Carmen (also a Boca Bearings intern) and I collaborated ideas on how the wave tank should be constructed. Carmen created a spreadsheet that compared and contrasted parts to be used in this project. At first we came up with the idea to use plexiglass, but we came to the conclusion that we are going to need steel bracing to ensure that the frame will hold the correct amount of water without bowing. To escape this obstacle of buying steel we found out that there are multiple fish tanks that are ready to hold water without adding the steel bracings. For example there is a tak located in Tampa Florida that is being sold for 750 USD$. If we were to pursue this option we could cut back our total cost for the project as well as total time.
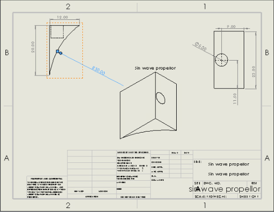
The original design for this tank included two linear actuators powered by servo motors to push a paddle like design backwards and forwards horizontally creating a sine wave. With sufficient research we found that the same sin wave could be created with one linear actuator and one servo motor. This system will extend and retract the linear actuator in the positive and negative y direction. The linear actuator will be epoxied into a hole located at the top of the 3d printed sine wave propellor created in solid works. The drawing is listed in figure1.

In addition to creating the propeller Carmen inspired me with an idea of drawing a wave dissipater to decrease the turbulence in the tank. To reduce the amount of agitation in the water the system will have mesh wiring in front of a curved surface that has a linear pattern of 2 inch spheres or cylinders. This pattern will help the water disperse properly so that the propeller is able to produce an adequate height for each wave. With reduced turbulence each wave propelled to the piston system will displace each of the pistons supplying enough force to turn the crankshaft with ease. The drawing for this part is listed in Figure2.
